Rosedale Residence

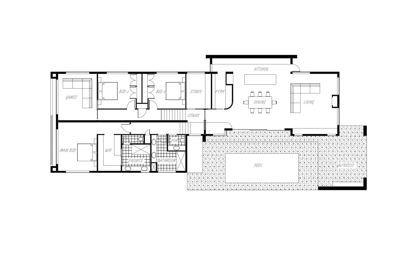
A refined response to urban family living, the Rosedale Residence embodies modernist design with thoughtful functionality. Spanning 47.5 squares, this split-level home makes full use of a sloping block, allowing for dynamic zoned living and a strong architectural presence.

Designed for both privacy and connection, the layout features a dedicated parents’ retreat, a separate kids’ wing, and a self-contained guest area—each space carefully curated to support contemporary lifestyles. A dramatic ceiling height elevates the open plan kitchen, dining, and living areas, which seamlessly extend to an in-ground pool and landscaped outdoor space.

High-performance uPVC glazing enhances thermal comfort and acoustic performance, while the bold exterior combines feature brick cladding with clean modernist lines. Inside, the flow of natural light and layered levels creates a calm yet compelling interior experience.

The Rosedale Residence is a showcase of practical luxury—designed to adapt, impress, and endure.

If you’re looking for a custom builder in Melbourne’s eastern suburbs who values design excellence and construction quality, contact us to discover the Beachstone Homes difference.

House Size 47.5sq

Introducing Rosedale Residence: A Modernist Masterpiece for Urban Family Living

At Beachstone Homes, we’re proud to present the Rosedale Residence—an architecturally designed, split-level home in Glen Iris that exemplifies modernist design and practical luxury. Spanning 47.5 squares, this impressive residence showcases our commitment to clever site response, energy efficiency, and thoughtful family zoning.

Designed to Work with the Land

Set on a sloping block in one of Melbourne’s established inner suburbs, the Rosedale Residence has been purposefully designed to follow the natural contours of the site. The split-level layout not only enhances street presence but allows for a clear separation of living zones—giving families the space and privacy they need, without sacrificing connection.

Elevated Everyday Living

At the heart of the home is a soaring open plan kitchen, dining, and living area, featuring dramatic ceiling heights and large expanses of glazing. This light-filled space opens directly onto an in-ground pool and landscaped outdoor entertaining area, blurring the boundary between indoor and outdoor living. Whether hosting guests or enjoying quiet family moments, this home is built to adapt.

Zoned Living with Purpose

The floorplan has been carefully crafted to suit the needs of growing families. A private parents’ retreat offers a peaceful escape, while a distinct kids’ wing and dedicated guest zone ensure everyone has their own space. Every detail—from circulation to storage—has been considered to support a balanced lifestyle.

Built for Performance and Longevity

High-performance uPVC windows and quality building materials ensure exceptional energy efficiency, acoustic insulation, and year-round comfort. Sustainability and function are seamlessly integrated, making the Rosedale Residence not just beautiful, but future-ready.

Modernist Design with Lasting Appeal

Externally, the home makes a bold architectural statement. A crisp modernist form is grounded by feature brick cladding, which adds depth, character, and visual warmth. Inside, a calm palette and clean lines allow the home’s levels, light, and volume to take centre stage.

Built by Beachstone Homes: Your Custom Builder for Glen Iris and Beyond

The Rosedale Residence captures the design rigour, quality craftsmanship, and personal care that define every Beachstone Homes project. If you’re looking for a builder in Glen Iris or Melbourne’s eastern suburbs who can bring your architectural vision to life, talk to our team. We create homes that are not only beautiful—but uniquely yours.