Nelson Residence

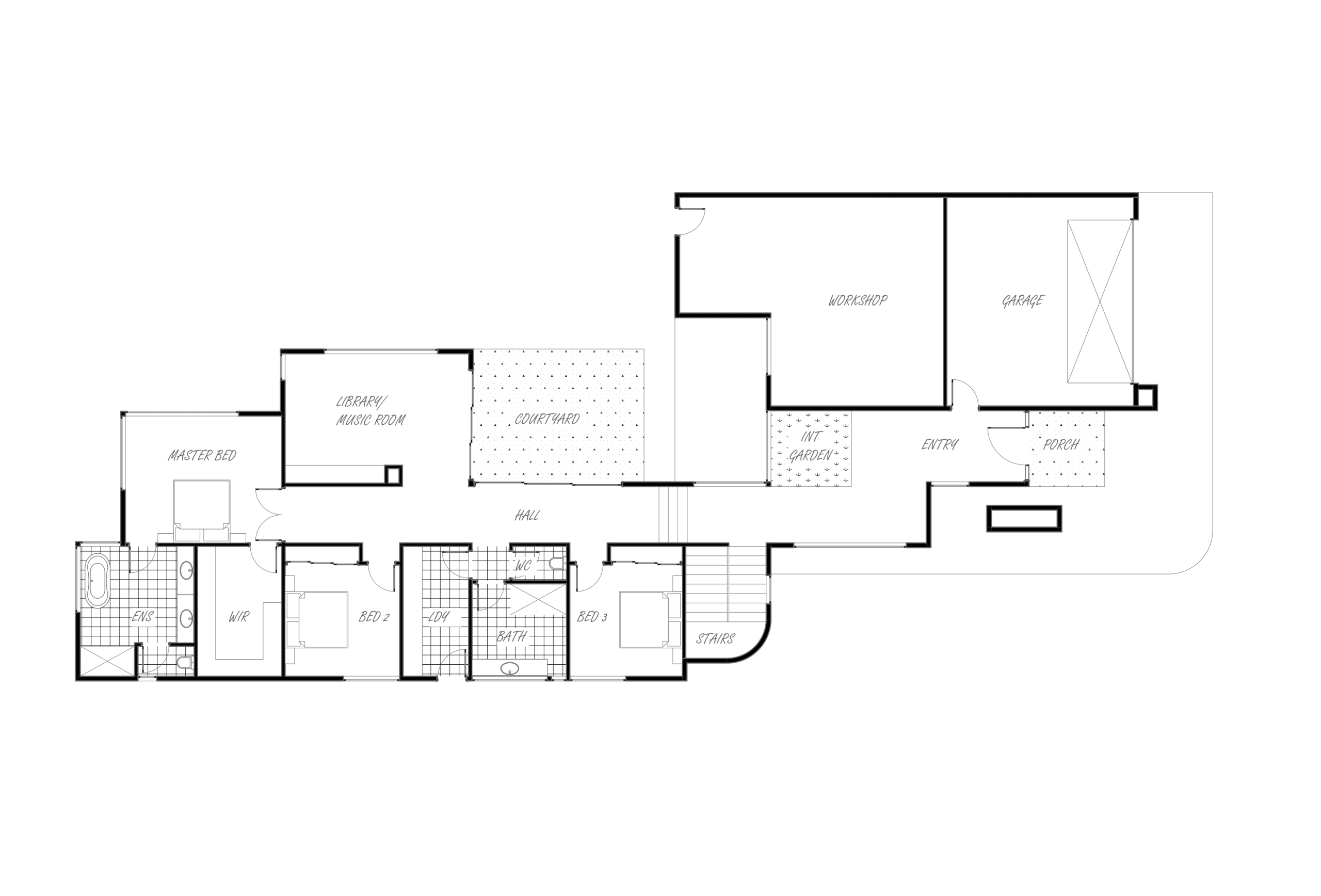
A bold expression of modern coastal living, the Nelson Residence captures the essence of design innovation and functional elegance. Spanning 50 squares, this architecturally designed home features a striking reverse living layout, carefully crafted to maximise sweeping views across Western Port Bay.

High-performance uPVC glazing ensures energy efficiency and year-round comfort, while expansive balconies and an internal garden blur the line between indoor and outdoor living. A stepped floor slab allows the home to nestle harmoniously into the landscape, creating soaring internal ceilings and a seamless connection to the garden surrounds.

The home’s material palette showcases considered detail—from feature bricks that flow from the front façade into the light-filled entry, to low-maintenance timber-look battens that soften the contemporary exterior. The Nelson Residence is a celebration of refined coastal living, designed for longevity, comfort, and visual impact.

If you’re looking for a Mornington Peninsula builder who brings thoughtful design and craftsmanship together, contact us to explore the Beachstone Homes experience.

House Size 50sq

Nelson Residence is a striking architectural home crafted by Beachstone Homes – your leading Mornington Peninsula builder.

Designed to make a bold statement while delivering effortless functionality, this completed home is a clear example of what’s possible when custom design and precision construction come together.

Custom Home Design in the Mornington Peninsula

Situated in a premium coastal setting, Nelson Residence was tailored to suit both its surrounds and the lifestyle of its owners. The home’s clean lines, strong structural forms, and balanced material palette reflect a thoughtful approach to custom home design on the Mornington Peninsula.

As a trusted custom home builder in the Mornington Peninsula, Beachstone Homes worked closely with our clients and designer to create a space that is not only visually impactful but also deeply practical for everyday family living.

Modern Design, Timeless Appeal

Nelson Residence is a contemporary home with enduring appeal. Key features include:

  • A bold architectural façade with strong horizontal lines and feature timber panelling
  • Open-plan kitchen, living, and dining zones designed for connection and light
  • A central outdoor entertaining area seamlessly integrated into the home’s footprint
  • A carefully curated interior palette featuring natural textures and layered finishes

Every aspect of the home has been carefully considered to reflect modern tastes while maintaining a grounded, inviting feel.

Built by an Award-Winning Mornington Peninsula Builder

At Beachstone Homes, we pride ourselves on delivering custom homes that embody quality, design integrity, and lifestyle alignment. Nelson Residence is a perfect reflection of our commitment to excellence and our expertise as a leading Mornington Peninsula builder.

From initial planning through to final handover, our team ensures every detail is executed to the highest standard—whether it’s bespoke cabinetry, glazing selection, or architectural detailing.

Designed Around Lifestyle, Built to Last

This residence is more than just a design statement—it’s a home built around the way its owners live. With open living zones, quiet retreats, and seamless indoor-outdoor flow, Nelson Residence reflects what matters most in a family home on the Mornington Peninsula.

Looking to Build on the Mornington Peninsula?

If you’re considering building your dream home on the Mornington Peninsula, Nelson Residence offers a glimpse into what Beachstone Homes can achieve. We specialise in custom home design and construction throughout the Mornington Peninsula, tailoring each project to suit the site, budget, and client vision.

Whether your ideal home is a contemporary build like Nelson or something more traditional or coastal, we’re here to guide you through every step.

Contact Beachstone Homes – Your Mornington Peninsula Builder

Let’s bring your vision to life. Contact Beachstone Homes to learn more about this project, discuss your upcoming build, or arrange a design consultation with our expert team.